Ready Set…Summer 2026

Ready Set…Summer 2026

EXCLUSIVE
$3,650,000

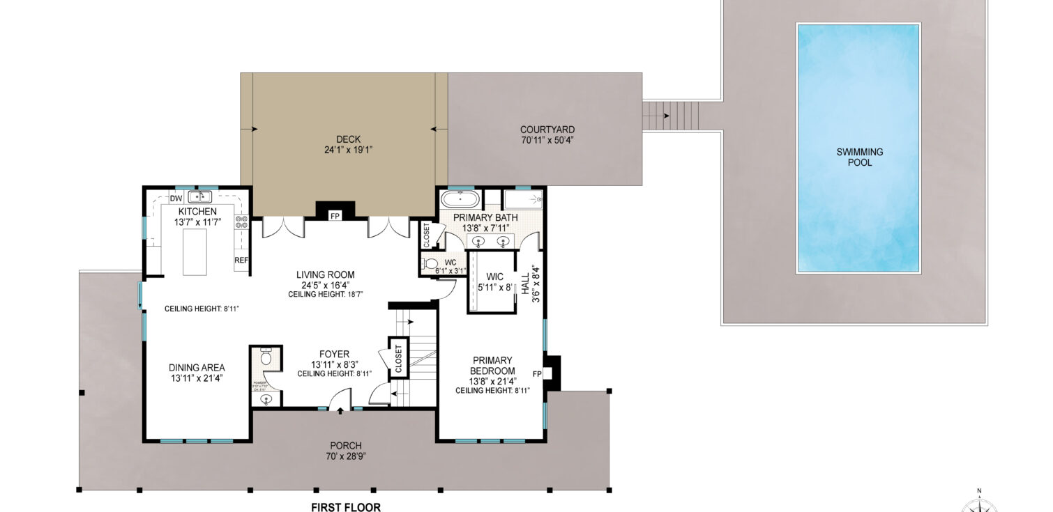
Drop your bags and enjoy your private salt water heated pool or hit the beach from this newly completed and move in ready post modern delight located on one of Montauk’s the less traveled roads set on a sprawling natural acre adjacent to Town Preserve and Albee Artist Foundation lands. Open your door to a generous main floor plan with open and bright foyer leading to 18 FT ceilinged fireside living lounge, powder room, double French doors to treescape mahogany deck, modern central island kitchen, stainless bosh appliances, beverage frig, generous dining room, slider to mahogany grill deck, expansive cozy primary suite with propane fireplace, walking closet with all doors leading to natures acres or the heated pool. The second floor arrives via a spacious glass rail lounge, balcony overlook, and onto 4 on suite guest suites and central laundry. There are extensive open air and covered mahogany decks and bolder lined grass yards leading to an elevated pool area with room for your preferred patios, pool bar or trellises. The egressed full basement awaits your custom game room, media lounge or roller court. Located on a private country road just minutes from Ocean Beaches, Town, Bay Beaches and transportation. Ready for immediate occupancy just pick out your furniture and get away from it all.

Exclusive $3,650,000.

John D’Agostino

Licensed Real Estate Broker

M: 516-885-6919